สถาปัตยกรรมเข้าใจชีวิตการสร้างสรรค์เพื่อความสมดุลที่ยั่งยืน
เมื่อธรรมชาติเป็นส่วนหนึ่งของชีวิตคนเมือง
ในโลกที่ความเร่งรีบเป็นเรื่องปกติ การแสวงหาความสงบและพื้นที่ส่วนตัวกลายเป็นสิ่งจำเป็น ที่อยู่อาศัยแห่งนี้ ได้รับการรังสรรค์ขึ้นจากความเข้าใจอย่างลึกซึ้งในวิถีชีวิตคนเมืองที่ต้องการความร่มรื่น แต่ยังคงความสะดวกสบายและความทันสมัยไว้ได้อย่างลงตัว เราจินตนาการถึงชีวิตที่สามารถหลีกหนีจากความวุ่นวายภายนอก ขณะที่ยังคงเข้าถึงทุกสิ่งอำนวยความสะดวกได้อย่างง่ายดาย แนวคิดหลักจึงอยู่ที่การสร้างสรรค์ที่อยู่อาศัยที่ผสานความร่มรื่นของธรรมชาติเข้ากับการออกแบบที่คำนึงถึงการใช้งานจริงในทุกมิติ
การออกแบบที่สะท้อนการใช้ชีวิตยุคใหม่
การออกแบบของโครงการนี้เน้นเส้นสายที่เรียบง่าย แต่แฝงไว้ด้วยความหรูหราเหนือกาลเวลา เราเลือกใช้วัสดุที่หลากหลาย เช่น กระจกบานใหญ่ เพื่อเปิดรับแสงธรรมชาติและทิวทัศน์ภายนอกให้เข้ามาเป็นส่วนหนึ่งของพื้นที่ภายใน ช่วยลดการพึ่งพาแสงประดิษฐ์ในเวลากลางวัน และสร้างความรู้สึกโปร่ง โล่ง สบายตา นอกจากนี้ การเลือกใช้ สีเอิร์ธโทน ผสมผสานกับสีเข้มบางส่วน ไม่เพียงแต่สะท้อนถึงความหนักแน่นและมั่นคง แต่ยังช่วยเสริมความรู้สึกอบอุ่นและเป็นกันเอง การจัดวางพื้นที่ใช้สอยภายในได้รับการออกแบบให้มีความยืดหยุ่น สามารถปรับเปลี่ยนได้ตามความต้องการของผู้อยู่อาศัย ไม่ว่าจะเป็นการใช้ชีวิตประจำวัน การทำงาน หรือแม้แต่การพักผ่อนกับครอบครัว
พื้นที่แห่งความสุขที่ตอบโจทย์ทุกความต้องการ
เราเชื่อว่าที่อยู่อาศัยไม่ใช่แค่โครงสร้าง แต่คือพื้นที่ที่สะท้อนตัวตนและส่งเสริมคุณภาพชีวิตที่ดี โครงการนี้จึงถูกคิดมาอย่างละเอียดทุกตารางนิ้ว เพื่อให้ทุกพื้นที่ใช้สอยสามารถตอบสนองความต้องการที่หลากหลาย ไม่ว่าจะเป็นพื้นที่สำหรับการรวมตัวของครอบครัว ห้องนอนที่ให้ความเป็นส่วนตัวสูงสุด หรือแม้แต่สวนหย่อมขนาดเล็กที่ช่วยเติมเต็มความสดชื่นและผ่อนคลาย ด้วยความเข้าใจในจังหวะชีวิตของคนเมือง เราจึงมุ่งมั่นที่จะสร้างสรรค์ที่อยู่อาศัยที่มอบทั้งความสวยงาม ฟังก์ชันการใช้งานที่ครบครัน และเหนือสิ่งอื่นใดคือการเป็น พื้นที่แห่งความสุขใจ ที่แท้จริงในใจกลางเมือง
Floor 1
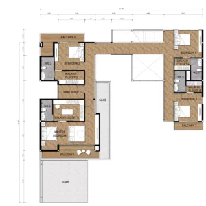
Floor 2





