“บทกวีที่แปรเป็นบ้าน” – เมื่อแรงบันดาลใจจากการเดินทางกลายเป็นบ้านที่สะท้อนตัวตน”
“ความงามของบ้านไม่ใช่แค่ดีไซน์…แต่มันคือความทรงจำ ความรู้สึก และตัวตนของใครบางคนที่ค่อยๆ ถูกถ่ายทอดออกมา”
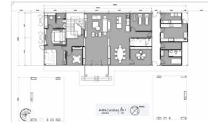
💡 ดีไซน์ที่สะท้อนตัวตน
โถงกลางดับเบิ้ลวอลลุ่ม เปิดโล่งรับแสงธรรมชาติ สะท้อนความโปร่งใจและความคิดสร้างสรรค์ของเจ้าของบ้าน
การเลือกวัสดุธรรมชาติ เช่นไม้ หิน และกระจก คือการผสานความอ่อนโยนและความมั่นคงเข้าไว้ด้วยกัน
ฟังก์ชันพื้นที่แยกเป็นสัดส่วน แต่ยังเชื่อมโยงกันด้วยแสงและลม ช่วยให้แต่ละมุมของบ้าน “หายใจ” ได้อย่างอิสระ
ที่จอดรถเปิดโล่งด้านหน้า สะท้อนรสนิยมแบบเรียบหรูแต่ไม่โอ้อวด
🪟 จากโครงสร้าง…สู่ความรู้สึก
บ้านหลังนี้ไม่ได้เน้นโชว์ความอลังการ
แต่เน้นความ “พอดี” ที่เต็มไปด้วยเรื่องราว — ห้องนั่งเล่นที่เธอใช้เขียนไดอารี่ในวันฝนตก
ห้องนอนที่หันออกสู่ทิศตะวันออก เพื่อให้เธอได้ตื่นมาพร้อมแสงแรกของวัน
หรือแม้แต่ต้นไม้หน้าบ้าน ที่ปลูกเพราะมันคือต้นเดียวกับที่แม่เคยปลูกหน้าบ้านสมัยเด็ก

> “บ้านหลังนี้ไม่ใช่แค่บ้าน…แต่มันคือบทกวีที่กลั่นออกจากความทรงจำ”
บ้านที่อบอวลด้วยแรงบันดาลใจจากการเดินทาง ผสานกับความรู้สึกละเอียดอ่อนและรสนิยมอันลึกซึ้งของเจ้าของ
เป็นพื้นที่แห่งการอยู่อาศัยที่ไม่ใช่แค่สวย…แต่มีชีวิต มีความหมาย และสะท้อน “ตัวตน” ได้อย่างแท้จริง







